Nikola Musálková

Kontakt na makléře Nikola Musálková +420 775 580 071 nikola@bravis.cz Nikola má dalších 26 aktivních nabídek

Poslední hodnocení Nikoly

Pani Musálková nám pomáhala s prenájmom parkovacieho miesta a s jej službami sme boli veľmi spokojní. Celý prenájom bol vybavený rýchlo a celý proces prebehol hladko. Oceňujem najmä jej profesionálny prístup, spoľahlivosť a príjemnú komunikáciu. Všetky kroky boli jasne vysvetlené a vybavené bez zbytočných prieťahov. Spoluprácu s pani Musálkovou určite odporúčam.

  Prodej bytu 2+kk 58 m² v novém projektu Rezidence Haná, Vyškov, 2x balkon, sklep (06293)

5 980 000 Kč
 
  Vybavenost
  Prodej bytu 2+kk 58 m² v novém projektu Rezidence Haná, Vyškov, 2x balkon, sklep

PRODEJ NOVÝCH BYTŮ VE VYŠKOVĚ ZAHÁJEN!

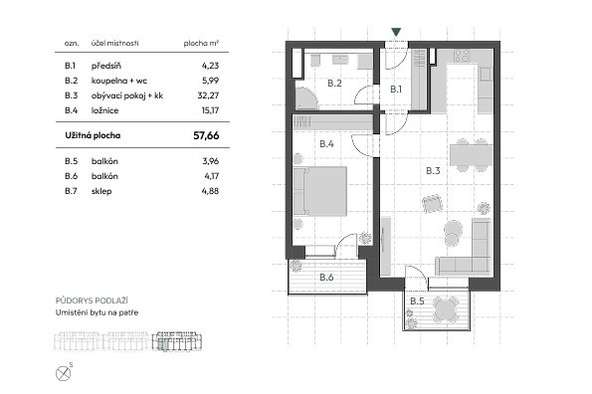
Nabízíme k prodeji moderní byt označený C.2B o dispozici 2+kk o užitné ploše 57,66 m² v novém developerském projektu Rezidence Haná ve Vyškově. Rezidence Haná přináší moderní a komfortní bydlení v atraktivní lokalitě Vyškova.
Byt se nachází v 2. nadzemním podlaží a je ideální volbou jak pro vlastní bydlení, tak jako investiční příležitost.
Ke komfortu bydlení přispívají také 2 balkony o rozloze 3,96 m² a 4,88 m² sklepní kóje 4,17 m², která je součástí kupní ceny.

Dispozice bytu:
Předsíň: 4,23 m² – prostor pro vestavěné skříně a úložné řešení
Koupelna + WC: 5,99 m² – moderní a prakticky řešená koupelna
Obývací pokoj s kuchyňským koutem: 32,27 m² – s dostatkem denního světla a přímým vstupem na balkon
Ložnice: 15,17 m² – klidná zóna pro odpočinek
2 balkony: 3,96 m² a 4,88 m² – ideální na posezení, relax nebo pěstování bylinek
Sklep: 4,17 m² – prostor pro sportovní vybavení či sezonní věci

Výhody tohoto projektu

Novostavba s vysokým standardem provedení v energeticky úsporném domě.
Bude vybudované velkokapacitní veřejné parkoviště u domu.
Prostorný balkon pro vaše chvíle pohody.
Sklepní kóje a možnost parkování přímo u domu.
Klidná lokalita v žádané části Vyškova – Předměstí, zároveň v pěší dostupnosti centra města.
Perfektní občanská vybavenost: školy, školky, obchody, restaurace, kino i lékaři přímo v okolí.
Výborná dopravní dostupnost – napojení na MHD a dálnici D1, Brno pouze 20 minut jízdy.

Rezidence Haná – moderní životní styl na dosah ruky
Projekt Rezidence Haná nabízí nejen moderní architekturu s důrazem na světlost a vzdušnost interiérů, ale i promyšlené dispozice jednotlivých bytů. Každá jednotka má vlastní balkon nebo terasu, což zaručuje soukromí i místo pro relaxaci na čerstvém vzduchu. Bezproblémové parkování přímo u domu je samozřejmostí.

Výstavba probíhá dle nejnovějších technologií s důrazem na kvalitu, úspornost a dlouhodobou spokojenost budoucích majitelů.

Neváhejte a staňte se součástí moderního bydlení v srdci Vyškova!

 
  Podobné nemovitosti na prodej