Mgr. et Mgr. Eva Man

Kontakt na makléře Mgr. et Mgr. Eva Man +420 724 912 912 eman@bravis.cz Eva má dalších 40 aktivních nabídek

Poslední hodnocení Evy

Paní Man nám pomohla s prodejem našeho bytu i s koupí nového domu. Její přátelský a zároveň profesionální přístup nám celý proces výrazně usnadnil. Většinu našich dotazů a požadavků zodpověděla rychle a srozumitelně. I díky tomu proběhl náš přechod z bytu do domu hladce a bez komplikací. Zajistila veškerou administrativu, takže jsme nakonec vše pouze zkontrolovali a podepsali, co bylo potřeba. Za to jí patří naše velké poděkování. Paní Man i s…

  Prodej nadstandardního, moderního bytu 2+kk, 40,3 m², krásná zahrada 35,7 m², sklep, Brno - Horní… (06892)

7 000 100 Kč
 
  Vybavenost
  Prodej nadstandardního, moderního bytu 2+kk, 40,3 m², krásná zahrada 35,7 m², sklep, Brno - Horní Heršpice

Dáváte přednost menším bytovým domům před velkými komplexy? Přesně takový je nově budovaný developerský projekt Záhumenice 21 v Horních Heršpicích – moderní bydlení s nadstandardním provedením.

Projekt Záhumenice 21 nabízí 12 promyšlených bytů v dispozicích 1+kk až 4+kk, od menších praktických jednotek po prostorné rodinné byty. Každý byt kombinuje komfort moderního bydlení s funkčním řešením a dlouhodobou hodnotou.

Vyberte si svůj byt mezi prvními, než to udělá někdo jiný!

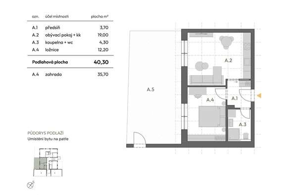
PROMYŠLENÁ DISPOZICE bytu o dispozici 2+kk (1A) o celkové ploše 40,3 m²:
Byt se nachází v prvním nadzemní podlaží:
• Předsíň: 3,7 m² – praktický vstupní prostor
• Obývací pokoj s kuchyňským koutem: 19m² – prostorný a světlý hlavní obytný prostor
• Ložnice - 12,3m² - útulný prostor pro Váš spánek
• Koupelna s WC: 4,3m² – moderní sanita od fimy Ptáček
• Nádherná a prostorná zahrada: 35,7 m² – buďte na vzduchu a přitom doma.

NADSTANDARDNÍ VYBAVENÍ A TECHNOLOGIE
• Tepelné čerpadlo – ekologický a ekonomický zdroj energie
• Podlahové vytápění a chlazení – maximální komfort po celý rok
• Okna s trojskly – vynikající tepelná a zvuková izolace
• Předokenní elektrické žaluzie – snadné ovládání a soukromí
• Moderní zabezpečovací systém – ochrana Vašeho majetku
• Kvalitní materiály a provedení – dlouhodobá životnost

Celková užitná plocha bytu činí 40,3 m², což v kombinaci s velkou zahradou vytváří ideální prostor pro budoucí majitele bytu.

K bytu náleží sklepní kóje.
Nad rámec kupní ceny se platí provize realitní kanceláře.

Lokalita Brno-Horní Heršpice zajišťuje výbornou dostupnost do centra a klidné zázemí pro každodenní život
V bezprostředním okolí se nachází cyklostezky, sportoviště i klidová místa pro relaxaci – ideální kombinace pro aktivní dny i pohodové večery. Školy, školky i kompletní občanská vybavenost je samozřejmostí.
Bydlení, které nabízí dostatek prostoru, soukromí a skutečný komfort pro celou rodinu.

Pokud Vás tento projekt zaujal, ozvěte se mi a zjistěte více informací,

 
  Podobné nemovitosti na prodej