Bc. Kateřina Diasová

Kontakt na makléře Bc. Kateřina Diasová +420 777 461 912 diasova@bravis.cz Kateřina má dalších 36 aktivních nabídek

Poslední hodnocení Kateřiny

S paní Kateřinou Diasovou mám velmi pozitivní zkušenost. Zajistila pro mě nalezení nové nájemnice a celý proces probíhal hladce a profesionálně. Komunikace byla vždy milá, otevřená a paní Diasová ochotně vycházela vstříc mým požadavkům. Se službou jsem byla spokojena a mohu ji doporučit.

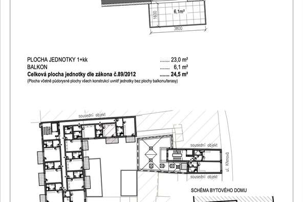
  Pronájem bytu 1+kk, Brno - Trnitá, ul. Křenová, novostavba, balkon, výborná dostupnost do centra (06909)

13 900 Kč/měsíc + 2.500,- Kč zálohy na služby + depozit + provize RK
 
  Vybavenost
  Pronájem bytu 1+kk, Brno - Trnitá, ul. Křenová, novostavba, balkon, výborná dostupnost do centra

Ve výhradním zastoupení majitele nabízíme k dlouhodobému pronájmu byt o dispozici 1+kk v městské části Brno - Trnitá na ulici Křenová.
Byt o výměře 23 m2 se nachází ve 3. nadzemním podlaží novostavby s výtahem. Součástí bytu je i prostorný balkon o ploše 6 m2.

Kuchyňská část pokoje je vybavena linkou včetně lednice s mrazícím boxem, trouby, varné desky, digestoře a myčky.
Obývací část je bez zařízení a je zde tak možnost vlastního dovybavení. Z pokoje vede vchod na prostorný balkon, který je orientovaný do vnitrobloku, takže vás neruší hluk z hlavní ulice.
Zařízení koupelny tvoří sprchový kout, umyvadlo, otopný žebřík, toaleta a přípojka na pračku.
V chodbě je prostor na umístění šatní skříně.

Možnost připojení internetu a TV.

V blízkosti domu se nachází obchody, restaurace, kavárny a zastávka MHD.
Výborná dostupnost do centra města - pouze jednu zastávku MHD nebo 10 minut pěší chůze.

Prohlídky možné po domluvě s níže uvedeným makléřem.

 
  Podobné nemovitosti na pronájem