Menu
zpět na výpis nemovitostí

Pronájem bytu 1+kk, Brno - Trnitá, ul. Křenová, novostavba, balkon, výborná dostupnost do centra

Křenová, Brno - Trnitá
  • 1+kk (Byty)
  • 25 m2
  • Balkon
  • Výtah
13 900 Kč/měsíc + 2.500,- Kč zálohy na služby + depozit + provize RK Kontaktovat makléře
Poslední hodnocení Kateřiny S paní Kateřinou Diasovou mám velmi pozitivní zkušenost. Zajistila pro mě nalezení nové nájemnice a celý proces probíhal hladce a profesionálně. Komunikace byla vždy milá, otevřená a paní Diasová ochotně vycházela vstříc mým požadavkům. Se službou jsem byla spokojena a mohu ji doporučit.

Informace

  • Adresa:Křenová, Brno - Trnitá
  • Plocha:25 m2
  • Balkon:6 m2
  • Typ:1+kk (Byty)
  • Vybavenost:ne nebo částečně
  • Konstrukce:Cihlová
  • Patro:2. patro
  • Výtah:Ano
  • PENB:B

Vybavenost

Kuchyňská linka Lednice Sporák Myčka Sprchový kout Výtah Balkon

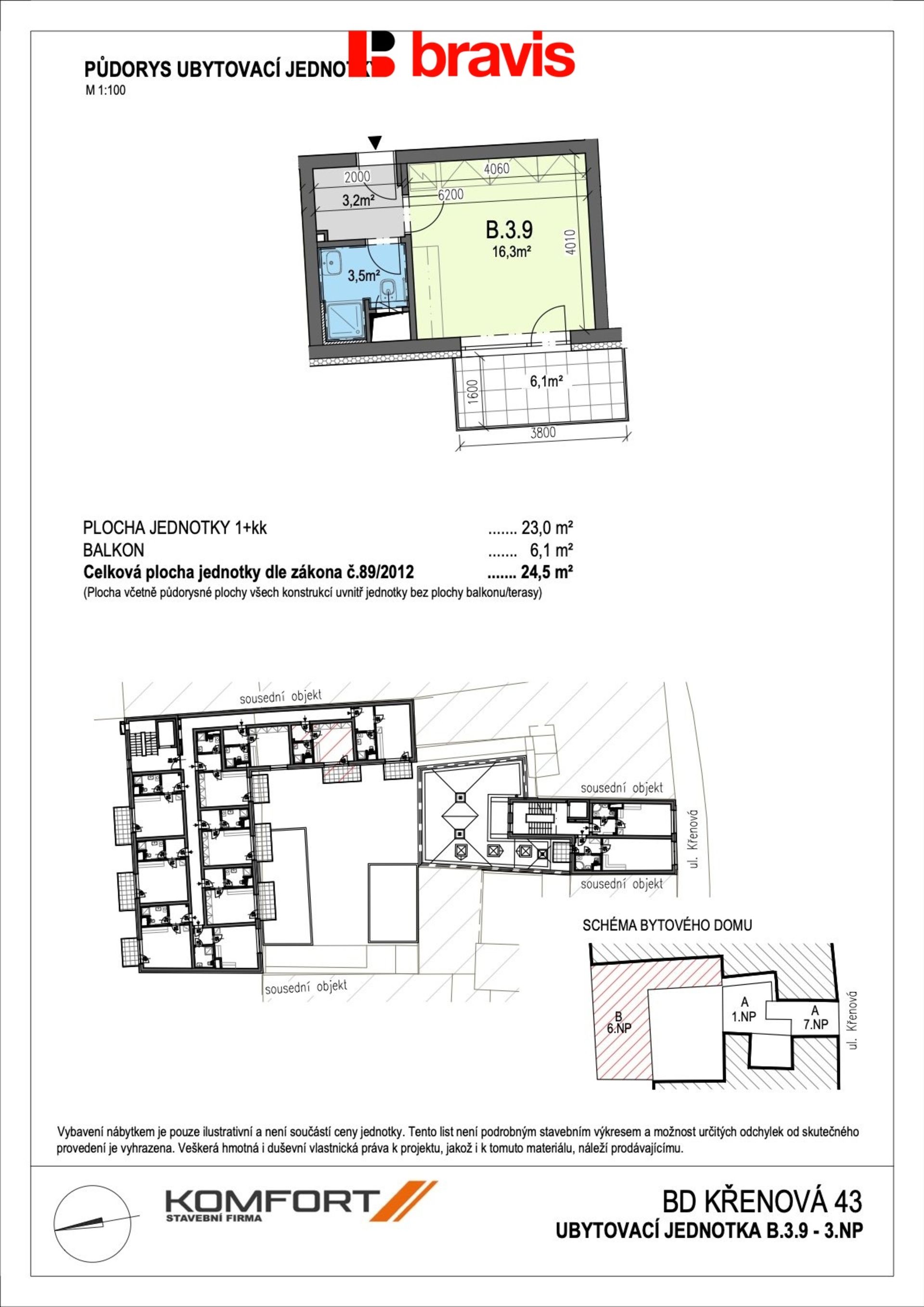
Ve výhradním zastoupení majitele nabízíme k dlouhodobému pronájmu byt o dispozici 1+kk v městské části Brno - Trnitá na ulici Křenová.
Byt o výměře 23 m2 se nachází ve 3. nadzemním podlaží novostavby s výtahem. Součástí bytu je i prostorný balkon o ploše 6 m2.

Kuchyňská část pokoje je vybavena linkou včetně lednice s mrazícím boxem, trouby, varné desky, digestoře a myčky.
Obývací část je bez zařízení a je zde tak možnost vlastního dovybavení. Z pokoje vede vchod na prostorný balkon, který je orientovaný do vnitrobloku, takže vás neruší hluk z hlavní ulice.
Zařízení koupelny tvoří sprchový kout, umyvadlo, otopný žebřík, toaleta a přípojka na pračku.
V chodbě je prostor na umístění šatní skříně.

Možnost připojení internetu a TV.

V blízkosti domu se nachází obchody, restaurace, kavárny a zastávka MHD.
Výborná dostupnost do centra města - pouze jednu zastávku MHD nebo 10 minut pěší chůze.

Prohlídky možné po domluvě s níže uvedeným makléřem.

Podobné nemovitosti na pronájem